Calculette
Partager
NIMES 7 COLLINES APPARTEMENT TYPE 4 AVEC CAVE
Description de l'offre
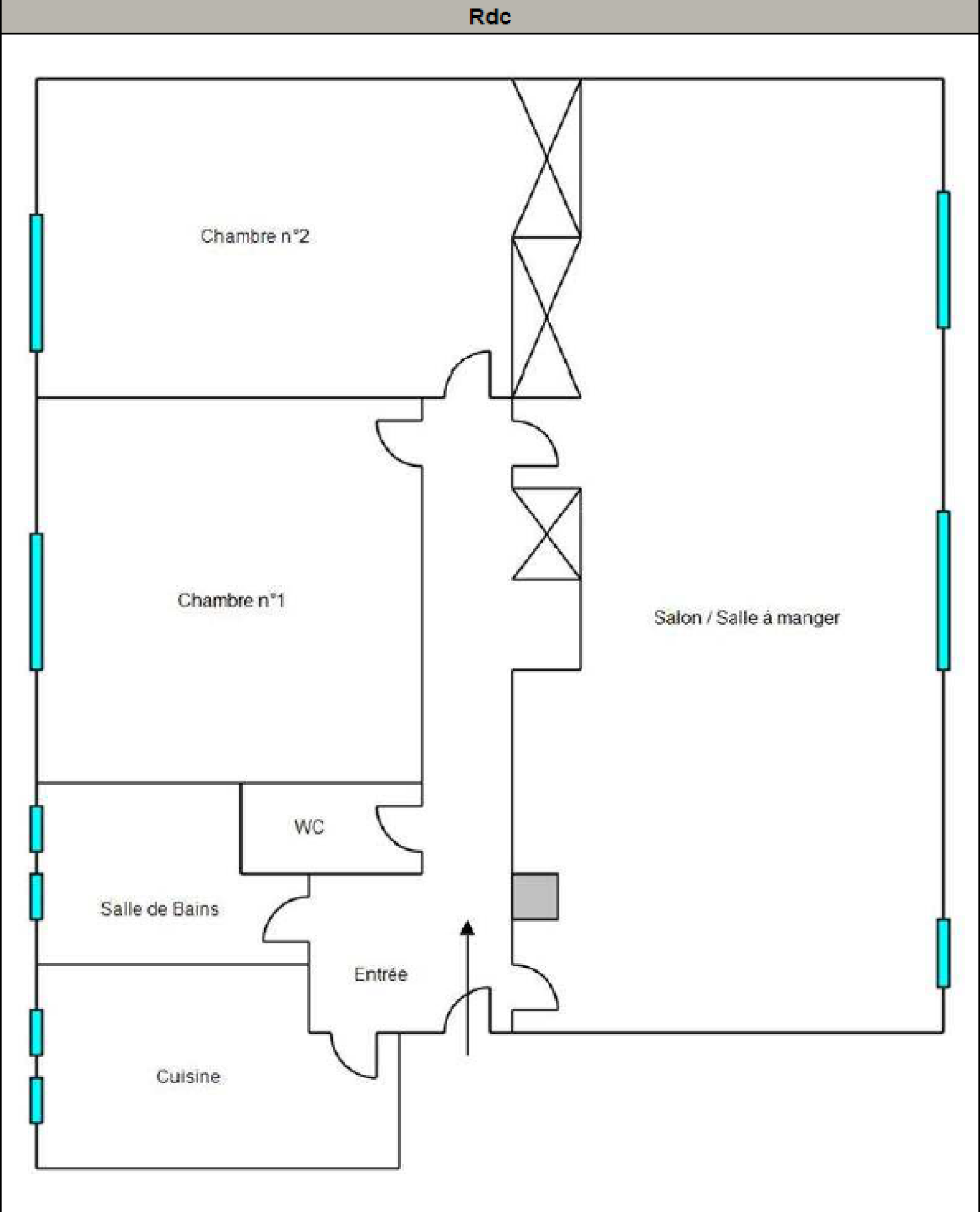
NIMES 7 COLLINES Venez découvrir dans une copropriété calme et sécurisée, cet agréable appartement traversant et lumineux. Il se compose d'une entrée, un double séjour, une cuisine séparée, 2 chambres, salle de bain, wc. Cave et Possibilité de stationnement dans la résidence. Copro 100 Appt/228 lots, Procédures en cours : néant, Charges 741€/an Honoraires charge vendeur - Les informations sur les risques auxquels ce bien est exposé sont disponibles sur le site Géorisques : www.georisques.gouv.fr
Descriptif du bien
- Code postal : 30000
- Surface habitable (m²) : 62 m²
- Nombre de chambre(s) : 2
- Nombre de pièces : 4
- Ascenseur : NON
- Vue : Jardin
- Nb de salle de bains : 1
- Cuisine : SEPAREE
- Type de cuisine : SEMI-EQUIPEE
- Mode de chauffage : Gaz de ville
- Type de chauffage : TRAD_TYPE_CHAUFF_CHAUDIERE
- Format de chauffage : Individuel
- Balcon : NON
- Terrasse : NON
- Cave : OUI
- Exposition : NORD-SUD
- Année de construction : 1964
- Quartier : COSTIERES , NIMES
- Copropriété : OUI
- nombre de lots : 228
- Quote Part annuelle des charges : 741 €
- statut du syndic : pas de procédure en cours
- Prix de vente : 119 000 €
- Les honoraires d'agence seront intégralement à la charge du vendeur
- Charges : 62 €
- Taxe foncière annuelle : 1 155 €
Montant estimé des dépenses annuelles d'énergie pour un usage standard est compris entre 1 490 € et 2 070 € . Prix moyens des énergies indexés sur les années 2021, 2022 et 2023 (abonnements compris).
La ville de Nîmes (30000)
Ce bien vous intéresse ?
Partager l'offre
AGIR ADMINISTRATION DE BIENS
Nîmes (30900)
Les informations recueillies sur ce formulaire sont enregistrées dans un fichier informatisé par La Boite Immo agissant comme Sous-traitant du traitement pour la gestion de la clientèle/prospects de l'Agence / du Réseau qui reste Responsable du Traitement de vos Données personnelles.
La base légale du traitement repose sur l'intérêt légitime de l'Agence / du Réseau.
Elles sont conservées jusqu'à demande de suppression et sont destinées à l'Agence / au Réseau.
Conformément à la loi « informatique et libertés », vous disposez des droits d’accès, de rectification, d’effacement, d’opposition, de limitation et de portabilité de vos données. Vous pouvez retirer votre consentement à tout moment en contactant directement l’Agence / Le Réseau.
Consultez le site https://cnil.fr/fr pour plus d’informations sur vos droits.
Si vous estimez, après avoir contacté l'Agence / le Réseau, que vos droits « Informatique et Libertés » ne sont pas respectés, vous pouvez adresser une réclamation à la CNIL.
Nous vous informons de l’existence de la liste d'opposition au démarchage téléphonique « Bloctel », sur laquelle vous pouvez vous inscrire ici : https://www.bloctel.gouv.fr
Dans le cadre de la protection des Données personnelles, nous vous invitons à ne pas inscrire de Données sensibles dans le champ de saisie libre.
Ce site est protégé par reCAPTCHA, les Politiques de Confidentialité et les Conditions d'Utilisation de Google s'appliquent.
