Référence : 2533
Calculette
Partager
NIMES BAS JEAN JAURES - APPARTEMENT TYPE 3 AVEC TERRASSE ET PARKING
Description de l'offre
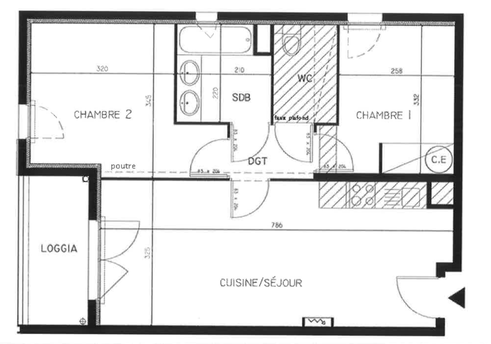
NIMES BAS JEAN JAURES Découvrez cet appartement de type T3 d'une surface habitable d'environ 55m² dans une résidence récente avec ascenseur, proche de toutes les commodités avec parking privé et cellier en sous-sol, offrant confort et sécurité pour votre véhicule. Il comprend une cuisine ouverte sur le séjour, deux chambres dont une avec placard, une salle de bains, wc et dégagement, L’appartement bénéficie également d’une loggia d’environ 5 m², idéale pour profiter d’un espace extérieur. Copro 36 Appt / 72 lots, Procédures en cours : néant, Charges 1647€/an, Honoraires charge vendeur - Les informations sur les risques auxquels ce bien est exposé sont disponibles sur le site Géorisques : www.géorisques.gouv.fr
Descriptif du bien
- Code postal : 30900
- Surface habitable (m²) : 55,44 m²
- Surface loi Carrez (m²) : 55,44 m²
- Nombre de chambre(s) : 2
- Nombre de pièces : 3
- Etage : 1
- Nb de salle d'eau : 1
- Cuisine : AMERICAINE
- Type de cuisine : SEMI-EQUIPEE
- Mode de chauffage : Electrique
- Type de chauffage : Panneaux rayonnant
- Format de chauffage : Individuel
- Terrasse : OUI
- Exposition : SUD-OUEST
- Année de construction : 2009
- Quartier : JEAN JAURES SUD, NIMES, PUECH DU TEIL
- Copropriété : OUI
- nombre de lots : 72
- Quote Part annuelle des charges : 1 646,65 €
- statut du syndic : pas de procédure en cours
- Prix de vente : 149 000 €
- Les honoraires d'agence seront intégralement à la charge du vendeur
- Charges : 137 €
- Taxe foncière annuelle : 1 136 €
Montant estimé des dépenses annuelles d'énergie de ce logement pour un usage standard est compris entre 490 € et 710 € . 2021 étant l'année de référence des prix de l'énergie utilisés pour établir cette estimation.
La ville de Nîmes (30900)
Ce bien vous intéresse ?
Partager l'offre
Nous Contacter
Afficher le téléphone 04 66 36 61 86Les informations recueillies sur ce formulaire sont enregistrées dans un fichier informatisé par La Boite Immo agissant comme Sous-traitant du traitement pour la gestion de la clientèle/prospects de l'Agence / du Réseau qui reste Responsable du Traitement de vos Données personnelles.
La base légale du traitement repose sur l'intérêt légitime de l'Agence / du Réseau.
Elles sont conservées jusqu'à demande de suppression et sont destinées à l'Agence / au Réseau.
Conformément à la loi « informatique et libertés », vous disposez des droits d’accès, de rectification, d’effacement, d’opposition, de limitation et de portabilité de vos données. Vous pouvez retirer votre consentement à tout moment en contactant directement l’Agence / Le Réseau.
Consultez le site https://cnil.fr/fr pour plus d’informations sur vos droits.
Si vous estimez, après avoir contacté l'Agence / le Réseau, que vos droits « Informatique et Libertés » ne sont pas respectés, vous pouvez adresser une réclamation à la CNIL.
Nous vous informons de l’existence de la liste d'opposition au démarchage téléphonique « Bloctel », sur laquelle vous pouvez vous inscrire ici : https://www.bloctel.gouv.fr
Dans le cadre de la protection des Données personnelles, nous vous invitons à ne pas inscrire de Données sensibles dans le champ de saisie libre.
Ce site est protégé par reCAPTCHA, les Politiques de Confidentialité et les Conditions d'Utilisation de Google s'appliquent.
